我是h1

 

馬良(中國)工程設計有限公司

 

南寧市青秀區東盟商務區利海亞洲國際領峰A座1416-1419號

NO.1416-1419, block a, Lihai Asia international leading peak, ASEAN Business District, Qingxiu District Nanning City

TEL:+86 17776201122

E-mail: eczdsj023@126.com

 

馬良(中國)工程設計有限公司

 

成都市武侯區五興五路力方國際大廈13樓

13th floor, Lifang international building, Wuxing 5th Road Wuhou District Chengdu City

TEL:+86 13980635707

E-mail: eczdsj023@126.com

關於馬良         服務範疇         經典項目         新聞媒體         加入馬良         聯系我們

雲南美泉尊府樣板間

产品描述



  Meiquan Zunfu model room

  美 泉 尊 府 樣 板 間  



【设计概念】


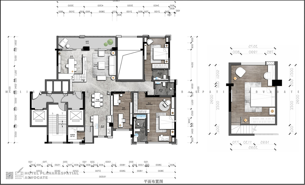
【设计平面图】


從門口開始,至過道玄關、客廳、茶室、餐廳、以及廚房,統一鋪滿維納斯灰瓷磚,整個空間以中色調為基礎,通過沙發、椅子、餐桌、茶幾等多種元素及其色彩搭配的使用,豐富了整個空間的高級氣質與風格。

From the door to the corridor, living room, tea room, dining room and kitchen, Venus grey tiles are uniformly paved. The whole space is based on the medium tone, and the use of various elements such as sofa, chair, table, tea table and their color matching enrich the high-level temperament and style of the whole space.


【客厅家具饰品意向图】


過道將客廳與餐廳分割開來,其左側是明亮、清晰的客廳和茶室以及陽臺的位置,右側則是餐廳和廚房。

The corridor separates the living room from the dining room. On the left is the bright and clear living room, tea room and balcony. On the right is the dining room and kitchen.




松軟的現代風格布藝沙發占據客廳的正佳位置,單人造型沙發與藝術茶幾緊挨著,落地燈在角落的窗簾旁邊,各類家居的分布層次分明、井然有序。單人造型沙發背對著陽臺,正好可以沐浴在午後溫暖的陽光之中,享受精致的下午茶,如此美妙。

The soft modern style fabric sofa occupies a good position in the living room. The single person modeling sofa is next to the art tea table. The floor lamp is beside the curtain in the corner. The distribution of all kinds of home furnishings is clear and orderly. Single modeling sofa back to the balcony, just can be bathed in the warm afternoon sun, enjoy delicate afternoon tea, so wonderful.


從客廳到廚房也僅有兩三步之遙,原木色系的椅子搭配充滿藝術的造型吊燈,現代特色與傳統古典的美感相結合,給人極強的親和力,舒適和返璞歸真之感油然而生。

It's only two or three steps away from the living room to the kitchen. The chairs in log colors are matched with artistic modeling chandeliers. The combination of modern characteristics and traditional classical aesthetic feeling gives people a strong affinity. The feeling of comfort and returning to nature arises spontaneously.


臥室和書房采用木地板鋪墊,營造安靜、自然的空間格調,藝術茶幾和貴妃椅臨窗而置,邊幾、單人沙發、造型雕塑、落地燈、藝術吊燈等元素有序地點著整個空間,現代化的藝術感充斥整個房間。

The bedroom and study are paved with wooden floor to create a quiet and natural space style. The art tea table and the Royal chair are placed near the window. The edge table, single sofa, plastic sculpture, floor lamp, Art Chandelier and other elements orderly place the whole space, and the modern sense of art fills the whole room.


【主卧家具饰品意向图】



辦公室和書房合二為一,這裏同樣裝飾著掛畫、造型沙發以及增添了綠色植被,不論是觀賞性還是實用性,在功能的選擇上多了不止一點,休閑、辦公可以自由裝換如臂使指。

The office and study are integrated into one. It is also decorated with hanging pictures, modeling sofas and adding green vegetation. Whether it is ornamental or practical, it has more than one choice of functions. Leisure and office can be changed freely.


【书房家具饰品意向图】



主臥裏設置了私人衛生間,灰白色系的瓷磚、洗手臺、智能馬桶、浴缸等,時尚、自由、開闊之感,演繹著清新優雅的格調。

The master bedroom is equipped with a private bathroom, with gray white ceramic tiles, washing table, intelligent toilet and bathtub. It is fashionable, free and open, presenting a fresh and elegant style.


【卫生间家具饰品意向图】



【物料展示】